Marsweg 2 RT 12-4 Lathum

6988 BM
Lathum
Omschrijving
Specificaties
Foto's
Op de kaart
€135.000
Te koop
50
m2
Ontdek dit prachtige chalet op een unieke locatie!
Wij mogen u dit schitterende chalet v.v. een fraaie terrasoverkapping aanbieden, gelegen op het rustige en separate villapark v.v. een eigen slagboom. Geniet van een vrij uitzicht over de vijver vanuit de ruime, fraai aangelegde tuin – een plek waar u helemaal tot rust komt.
Binnen treft u een sfeervol woongedeelte v.v. smaakvolle inrichting met open keuken en twee comfortabele slaapkamers v.v. kasten/kastruime. De lichte woonkamer is voorzien van airconditioning en grote raampartijen die zorgen voor een overvloed aan daglicht. Via de openslaande deuren loopt u zo naar buiten, waardoor binnen en buiten naadloos in elkaar overgaan. Separaat toilet. Verder heeft u de beschikking over een luxe badkamer v.v. onder andere een heerlijke sauna.
Het chalet staat op een ruime, beschutte kavel en beschikt over een eigen parkeerplaats en praktische berging.
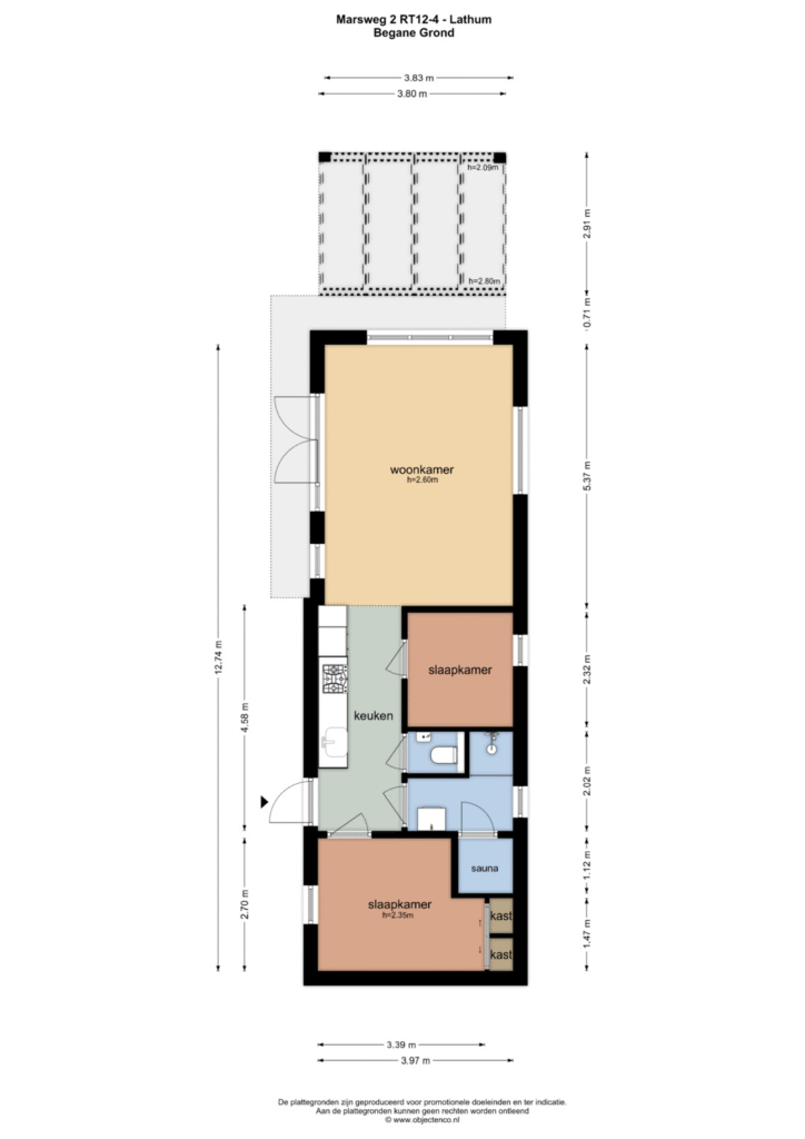
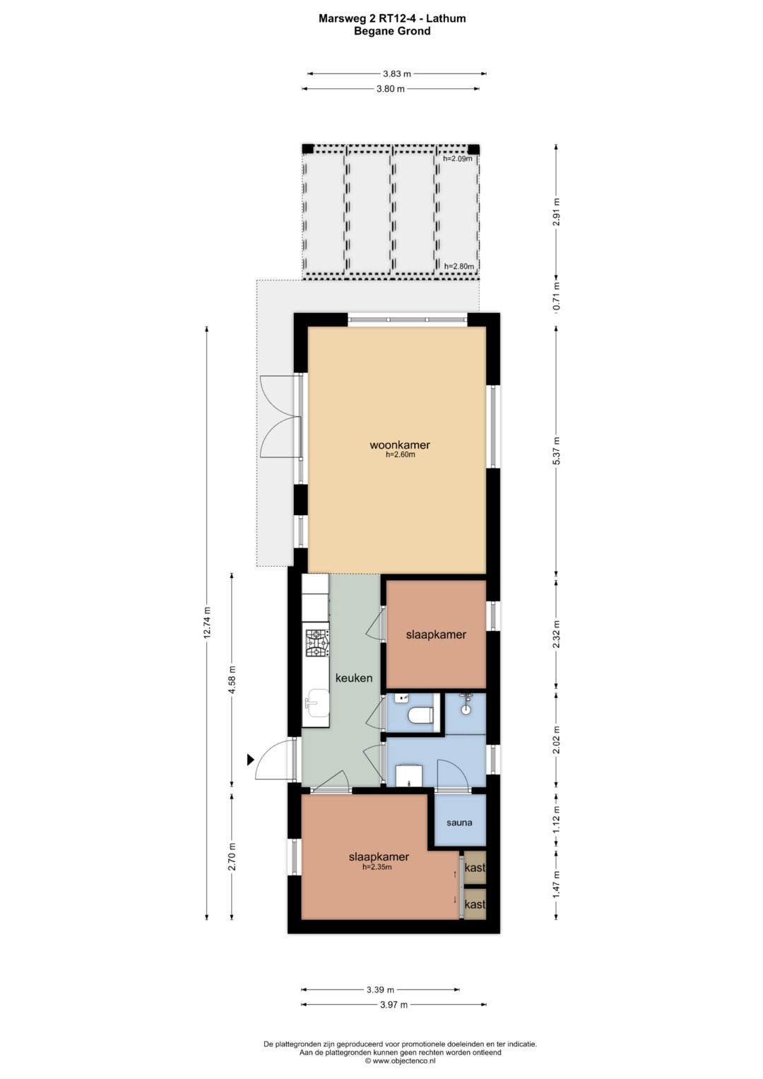
Indeling:
  • Entree met doorloop naar de open keuken
  • Ruime badkamer met douchecabine en wastafelmeubel
  • Sauna voor de ultieme wellness beleving
  • Gezellige woonkamer
  • Twee slaapkamers voorzien van kasten/kastruimte
De tuin is verzorgd en omgeven door groen. Op het terrein vindt u een fijne berging. De ligging is heerlijk rustig, met een eigen opgang en buren die allemaal eigenaar zijn van hun chalet.
Park Rhederlaagse Meren biedt volop faciliteiten: speeltuin, tennisbaan, zwembad, jachthaven, supermarkt, restaurant én het populaire zwem- en zandstrand. Dankzij de centrale ligging bent u binnen 10 à 15 minuten in Arnhem, Doetinchem of de charmante Hanzestad Doesburg. Natuurliefhebbers kunnen genieten van prachtige wandel- en fietsroutes, zoals Nationaal Park De Veluwezoom, de Posbank en de IJsselvallei. Het park is uitstekend bereikbaar via de A12, A50 en A348.
Praktische informatie:
  • Jaarlijkse huur grond: € 5.157,75
  • Gassoort: propaangas (via het park)
  • Gas ,water en elektra op naverrekening
  • Buren zijn allemaal eigenaar en gebruiken het chalet voor eigen gebruik
  • Mogelijkheid tot verhuur via het park of privé, met uitstekende rendementen
  • Aanvaarding: in overleg.

Algemeen

€135.000
Te koop

Gebouw en oppervlakte

RES
2023
150
m2
50
m2

Indeling

3
2
1

Neem contact op

100% veilig & vertrouwd

Snelmenu

Contact

Ⓒ 2018 Recreatieaankoopmakelaar
linkedin facebook pinterest youtube rss twitter instagram facebook-blank rss-blank linkedin-blank pinterest youtube twitter instagram
Deze website maakt gebruik van cookies. U kunt deze cookies uitzetten via uw browser maar dit kan het functioneren van onze website negatief aantasten.
OK